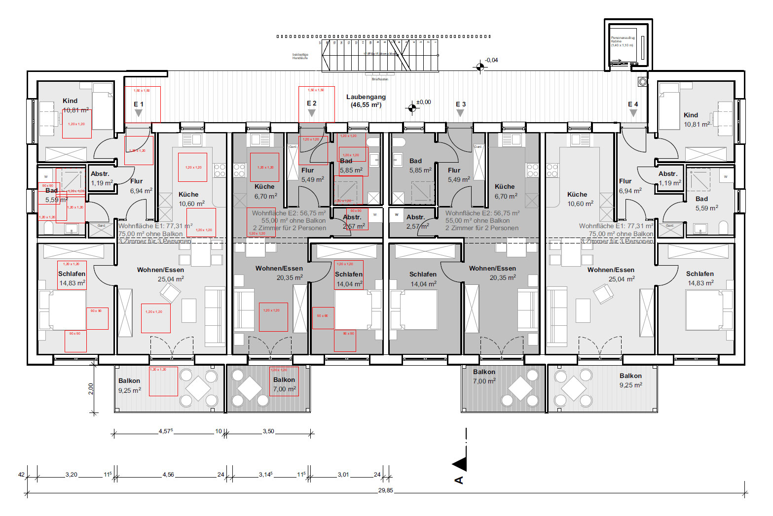
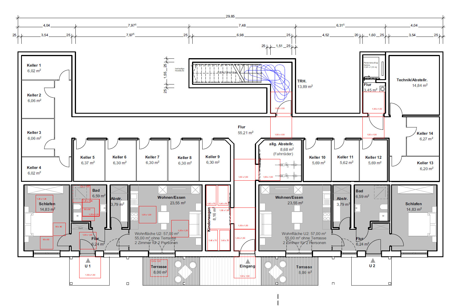
Wir realisieren im Moment einen Neubau in der Beethovenstr. in Ebern
Es entstehen insgesamt 14 barrierefreie Wohnungen. Das Gebäude verfügt über ein außenliegendes Treppenhaus, einen Aufzug, Photovoltaikanlage, 2 Stellplätze je Wohnung, rollstuhlgerechte/s Zimmertüren und Bad, Balkon, und vieles mehr.
Beethovenstraße, 96106 Ebern
10 Wohnungen
4 Eigentumswohnungen
28 Stellplätze

